Concepto


mobiliario
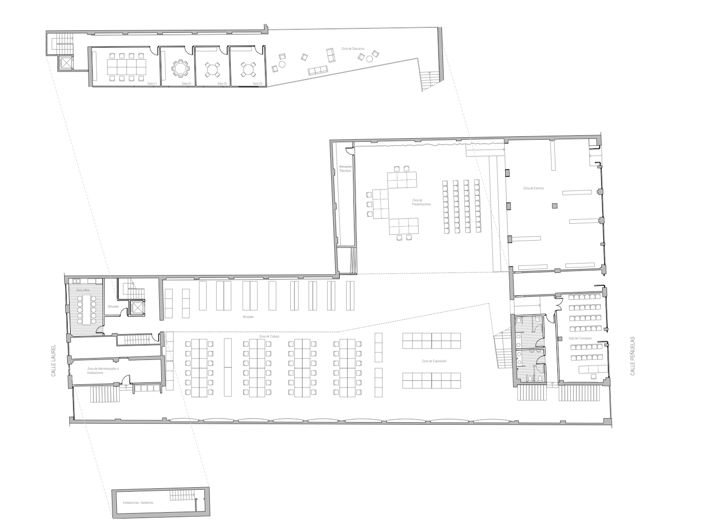
Este espacio multifuncional tiene como objetivo fomentar las actividades de la Fundación Biodiversidad. Las instalaciones albergan exposiciones, intercambio de ideas y charlas en un entorno que deberá ser imagen pública de sostenibilidad y eficiencia energética.
La geotermia es la fuente de energía sostenible elegida para abastecer las actividades del edificio. La fachada vegetal reduce las emisiones de CO2 y permite un comportamiento térmico equilibrado en el interior. La recuperación del agua de lluvia para suministrar las instalaciones del proyecto reduce el consumo energético. La cubierta ligera se abastece con lucernarios y tubos flexibles que distribuyen la luz natural hacia el interior. Todos estos elementos reducen el impacto ambiental y favorecen la sostenibilidad del edificio.
El interior es un recorrido fluido entre diferentes ambientes que pueden llegar a separarse cuando sea necesario. El volumen de madera que flota en el espacio facilita la flexibilidad y la relación entre los espacios. Además se convierte en un ingenioso mirador con una vista global de lo que sucede en el interior.
La distribución de los ambientes se organiza con el diseño de un mobiliario simple y funcional que facilita el movimiento, la dinámica y la posible reorganización espacial.



